Omschrijving
Woning verkocht: Anker 15 in Joure
* Mooi gelegen zeer goed onderhouden geschakeld woonhuis in Skipsleat
* Vrije ligging door de zijgevel die grenst aan speelveld
* Badkamer en keuken zijn recent gemoderniseerd
* Fijn aangebouwd kantoor om je lekker terug te trekken of thuis te werken
* Heerlijke achtertuin op het Zuidwesten
Op zoek naar een instapklare woning met ruimte, licht en een fijne ligging? Dit uitstekend onderhouden geschakelde woonhuis in Skipsleat biedt alles wat je zoekt! Door de vrije ligging aan een speelveld geniet je van extra privacy en een open gevoel. De recent vernieuwde keuken en badkamer zorgen voor modern wooncomfort, terwijl het aangebouwde kantoor/ speelkamer een perfecte plek is om te werken of ontspannen. De 9 aanwezige zonnepanelen (2020) zorgen voor een laag energieverbruik. En met de zonnige achtertuin op het zuidwesten is het hier het hele jaar door genieten.
Indeling:
Begane grond:
– entree/hal
– toilet+fontein
– sfeervolle woonkamer met gashaard, tuindeuren, trapkast
– open keuken (2020) met eiland/bar en een keukenopstelling met inductie kookplaat, vaatwasser en Quooker
– aangebouwde bijkeuken met keukenblok: koek-/vriescombinatie, combimagnetron, aansluiting wasmachine, kantoor/speelkamer,
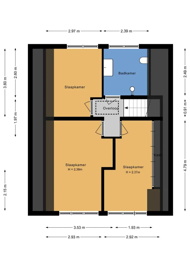
1e verdieping:
– overloop
– slaapkamer 1 met dakkapel (kunststof)
– slaapkamer 2
– slaapkamer 3
– badkamer (2017) met wastafel in meubel, (matglas), wandcloset en inloopdouche,
Zolder: vliezo:
– zolderberging met omvormer zonnepanelen
Berging:
Aangebouwde berging: fietsen (wand kan eruit) met c.v.-ketel (2022, eigendom)
Carport
Tussenberging vv electra (handig voor de elektrische fiets)
Aanvaarding: 6 weken na definitieve oplevering nieuwbouwhuis (medio november 2025)
Bijzonderheden:
– platte dak garage 2012
– schilderwerk buitenom 2019 (professioneel schilderbedrijf) en bijgewerkt in 2024
– garagedeuren 2023
– dakraam 2024
– keuken 2020
– 9 zonnepanelen 2020
– badkamer 2017
– dakkapel 2005
– Openslaande tuindeuren 2003
– huidige garage is omgebouwd tot berging aan voorzijde en kantoor aan achterzijde (kan makkelijk weer worden hersteld)



















































