Omschrijving
Woning beschikbaar: Brandemeer 33 – H in Leeuwarden
Op zaterdag 04 oktober tussen 11.00 – 15.00 uur bent u van harte welkom om zonder afspraak deze woning te bezichtigen tijdens de landelijke NVM Open Huizen Dag.
Fris, modern en helemaal instapklaar!
Op zoek naar een energiezuinige én comfortabele woning waar je zó in kunt? Dan is deze eigentijdse tussenwoning uit 2021 precies wat je zoekt! Brandemeer 33H ligt in een rustige, kindvriendelijke buurt in Leeuwarden en biedt alles wat je nodig hebt: ruimte, comfort, slimme techniek én een zonnige tuin op het westen.
Indeling:
Begane grond:
Bij binnenkomst valt het meteen op: dit huis is licht, ruim en keurig afgewerkt. De woonkamer is voorzien van grote raampartijen die zorgen voor een fijne, open sfeer. De moderne keuken is van alle gemakken voorzien – met energiezuinige apparatuur en genoeg ruimte om uitgebreid te koken en te tafelen.
Alles is strak afgewerkt en direct bewoonbaar. Geen klussen, gewoon je meubels neerzetten en wonen maar.
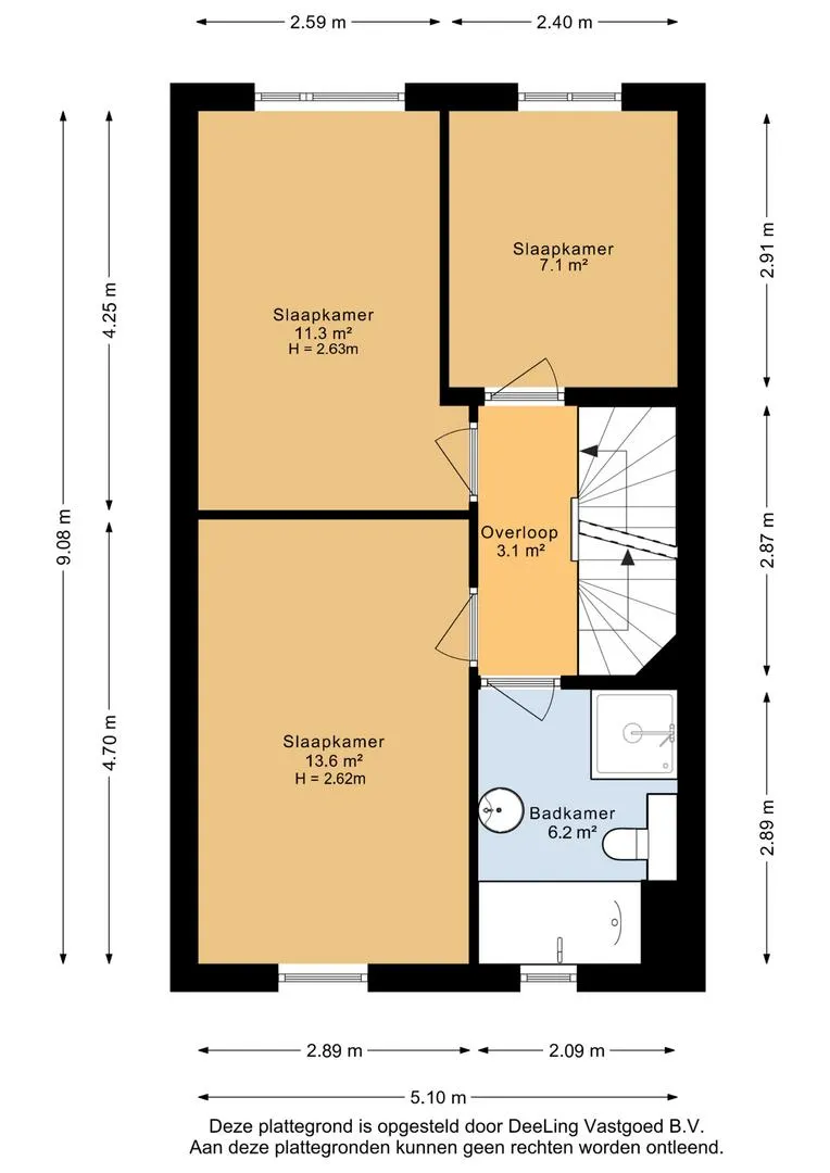
Eerste verdieping:
Op deze verdieping vind je maar liefst drie slaapkamers – ideaal voor gezinnen, logees of als je thuis werkt. De badkamer is modern, luxe afgewerkt en voorzien van een fijne inloopdouche en stijlvol sanitair.
Tweede verdieping:
Te bereiken met een vaste trap. Zeer ruime vierde slaapkamer en genoeg bergruimte.
Tuin:
Tuin op het westen – volop zon en weinig onderhoud
De achtertuin is onderhoudsarm aangelegd, dus meer tijd om te ontspannen! Dankzij de ligging op het westen kun je hier tot in de avond genieten van de zon. Extra handig: een praktische berging voor fietsen of tuinkussens.
Slim en duurzaam wonen:
Met energielabel A+++ is deze woning super energiezuinig – goed voor het milieu én je portemonnee. Comfortabel én toekomstbestendig!
Fijne buurt, goede ligging:
Brandemeer 33H ligt in een rustige straat in een jonge, vriendelijke wijk. In de directe omgeving vind je alles wat je nodig hebt: scholen, winkels, sportverenigingen en openbaar vervoer. Binnen een paar minuten ben je in het centrum van Leeuwarden of op de uitvalswegen richting Drachten, Heerenveen of Groningen.
Bijzonderheden:
– Bouwjaar 2021 – zo goed als nieuw
– Energielabel A+++
– Instapklaar en modern afgewerkt
– 4 slaapkamers
– Luxe badkamer met inloopdouche
– Zonnige tuin op het westen
– Slimme domotica voor verlichting, verwarming en beveiliging
– Onderhoudsarm en energiezuinig
– Voldoende parkeergelegenheid
– Rustige, kindvriendelijke ligging in Leeuwarden
– vlakbij het Leeuwarder bos en de Dokkumer Ee
Klinkt dit als jouw nieuwe thuis? Kom kijken en laat je verrassen door het comfort, de ruimte en de fijne sfeer van Brandemeer 33H!













































