Omschrijving
Woning beschikbaar: De Jokse 145 in Leeuwarden
Op zoek naar een woning met veel ruimte welke u nog volledig naar wens kunt maken?
Deze ruime woning met vier slaapkamers in de wijk Bilgaard is nu beschikbaar!
Indeling:
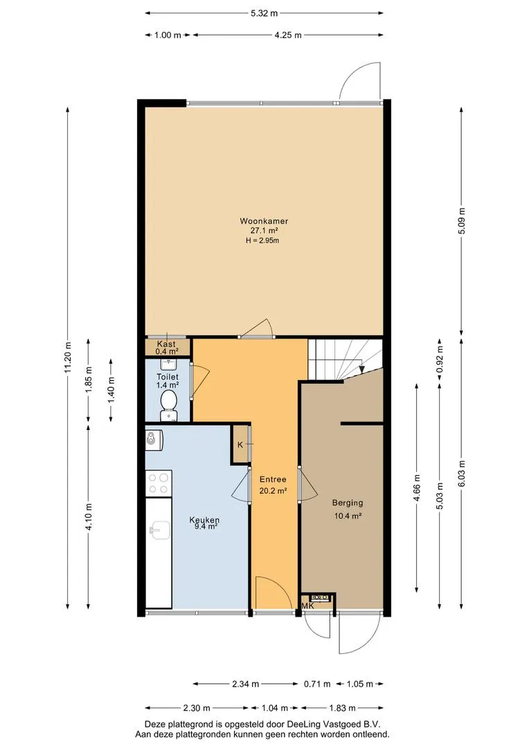
– entree/hal met vaste kast en trapopgang;
– inpandige berging welke vanuit de hal en van buitenaf te bereiken is;
– straatgerichte keukenruimte met eenvoudig keukenblok en CV opstelling;
– toilet met fontein
– tuingerichte woonkamer (27 m²) met vaste kast en deur naar de achtertuin.
De achtertuin van circa 10 meter diep is gelegen op het zuiden.
Verdieping:
– overloop met vaste kast;
– slaapkamer aan de voorzijde van de woning (circa 10 m2);
– slaapkamer aan de voorzijde van de woning (circa 12 m2);
– volledig betegelde badkamer met douche, wastafel en toilet;
– slaapkamer aan de achterzijde van de woning (circa 15 m2);
– slaapkamer aan de achterzijde van de woning (circa 12 m2).
Bijzonderheden
Woonoppervlakte 119 m²
Energielabel B
Voorzien van gevelisolatie, vloerisolatie en dubbel glas
Zonnige tuin op het zuiden
Gelegen op een paar stappen lopen van winkelcentrum Bilgaard
Bouwkundige keuring aanwezig
Alle bezichtigingen (ook niet-huurders) dienen tijdens de bezichtigingsmiddag op vrijdag 3 oktober tussen 16:00 uur en 17:00 uur plaats te vinden. Voor een afspraak tijdens de bezichtigingsmiddag kan je bellen met ons kantoor in Leeuwarden. We verwelkomen je graag! De sluiting van de inschrijving eindigt op vrijdag 8 augustus om 12:00 uur.
HUUR JE OP DIT MOMENT EEN WONING VAN ELKIEN? DAN HEB JE VOORRANG OM IN TE SCHRIJVEN VOOR DEZE WONING EN TE KOPEN VOOR DE VRAAGPRIJS (zie voorwaarden Elkien in de tekst hieronder**).
Wordt de woning niet verkocht aan een huurder, dan wordt deze gegund aan de hoogste bieder met de koopsom als minimale inschrijfprijs. Inschrijving voor huurders alleen geldig met volledig ingevuld inschrijfformulier incl. documenten
** Jij huurt op dit moment een woning van Elkien (ingeschreven staan als woningzoekende telt niet);
** Indien meerdere huurders zich hebben ingeschreven, wordt de woning toegewezen op basis van loting;
** Indien jij huurder bent en met een medehuurder wilt kopen, dient deze tenminste 2 jaar ingeschreven te staan op hetzelfde huuradres (medehuurderschap) of van rechtswege door huwelijk/geregistreerd partnerschap of jullie huren ieder een woning van Elkien en willen deze woning samen kopen.
Voorwaarden Elkien:
* De woning wordt verkocht in de huidige staat;
* Antispeculatiebeding: de woning mag niet binnen één jaar worden door verkocht;
* Verbod van verhuur uitgezonderd verhuur aan eerste graad bloedverwanten: de woning mag drie jaar niet worden verhuurd.
* Ouderdomsclausule: de bouwkwaliteit ligt lager dan bij nieuwe woningen;
* Voorbehoud financiering: maximaal 6 weken na mondeling akkoord koper/verkoper;
* Sleuteloverdracht: maximaal 8 weken na mondeling akkoord koper/verkoper;
* Indien de woning later passeert dan 8 weken, betaalt koper € 20,- boete per dag aan verkoper;
* Koper dient een natuurlijk persoon te zijn;
* De leveringsakte wordt betaald door Elkien (huisnotaris Breuker Netwerk notarissen te Drachten);




































