Omschrijving
Woning verkocht: Helmhout 13 in Joure
* In geliefde wijk Skipsleat gelegen ruim en licht helft-van-dubbel woonhuis met 5 volwaardige slaapkamers
* Duurzaam en energiezuinig (label A) dankzij warmtepomp, 16 zonnepanelen, HR++ glas en isolatie
* Zonnige achtertuin met veel privacy, meerdere terrassen, achterom en volop bergruimte
* Uitstekend onderhouden en met liefde bewoond – instapklaar
* Centrale ligging nabij centrum, scholen, supermarkten en gezondheidscentrum
Zorgeloos wonen met comfort en ruimte
Helmhout 13 is zo’n huis dat je meteen omarmt. Warm, ruim, licht én toekomstbestendig. Hier woon je energiezuinig en comfortabel, zonder concessies te doen aan sfeer of ruimte. Van de gezellige houtkachel tot de slimme klimaatregeling met airco’s – alles ademt aandacht en kwaliteit. De achtertuin is een rustige groene plek met zon én schaduw, perfect om te ontspannen of te spelen. Ook de ligging is ideaal: vlak bij alle voorzieningen die je nodig hebt. Een fijne gezinswoning die niet alleen goed voelt, maar ook goed doordacht is.
Indeling:
Begane grond
– Entree/hal met trapopgang en vernieuwde meterkast (2018)
– Woonkamer met veel licht en een sfeervolle Jacobus houtkachel (2022)
– Open keuken met inductiekookplaat, stoomoven en vaatwasser (allen 2018)
– Bijkeuken met wasmachine-/drogeropstelling en extra bergruimte
Eerste verdieping:
– Overloop met vitrinekast en Daikin airco-/verwarmingsunit
– Drie ruime slaapkamers
– Badkamer met ligbad, douche, toilet en dubbel wastafelmeubel
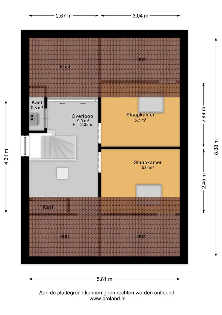
Tweede verdieping: vaste trap:
– Ruime overloop met vaste kasten
– Twee volwaardige slaapkamers met Veluxramen (2022) en verduistering
-Aparte stookruimte met CV
-extra bergruimte
Tuin
– Zonnige en onderhoudsvriendelijke achtertuin met natuurstenen terrassen
– Vrijstaande houten berging en veel houtopslagruimte
– Aangebouwde garage en achterom
Bijzonderheden:
– 16 zonnepanelen (eigendom): 8 x 315 Wp (2019) + 8 x 385 Wp (2022)
– Totaal opgewekt in 2024: 4.529 kWh ? saldo 1.080 kWh positief
– HR++ glas in gehele woning (incl. zolder en bijkeuken), 3 slaapkamers met thermopane
– Kunststof kozijnen zijgevel (2019), Veluxramen vernieuwd in 2022
– Jacobus houtkachel (2022) voldoet aan huidige emissienormen
– CV-installatie Intergas HRE (2019), onderhouden in 2024 door erkend installateur
– Daikin warmtepomp-airco’s met units op begane grond en 1e verdieping (2022), onderhouden in 2024 door erkend installateur
– Honeywell Evo Home-domotica (2018) voor slimme temperatuurregeling
– Gevels geïmpregneerd en gereinigd (2013 en opnieuw in 2023)
– Meterkast vernieuwd (2018), mechanische ventilatie Itho, goed werkend
– Schoorsteenkanalen enkelvoud in gebruik, laatst geveegd in 2023
– Rookmelders aanwezig op elke verdieping (geplaatst in 2022, batterij tot 2032)
– Internet: glasvezel aanwezig


















































