Omschrijving
Woning verkocht: Kûperij 8 in Joure
* Comfortabel ruim huis (191 m2) met 5 slaapkamers en extra ruimte voor kantoor, atelier of praktijk aan huis,
* Grote tuin met veel privacy met fruitbomen en drie terrassen,
* Ligging van het huis aan het eind van een rustige doodlopende straat,
* Zonnige grote woon- en eetkamer met veel lichtinval,
* Gevoel van rust en ruimte.
Comfortabel wonen aan de Kuperij 8 in Joure
In dit huis komt alles samen: ruimte, licht en rust. Met vijf slaapkamers en een extra kamer voor werken of hobby’s is er plek voor iedereen én alles. De royale woonkamer en eetkamer voelen heerlijk licht en open, terwijl je vanuit de woonkamer zo de zonnige tuin inloopt. Daar wachten fruitbomen, drie terrassen en volop privacy op je om te genieten van om te genieten van zonnige dagen en lange avonden. En dat alles aan het einde van een rustige doodlopende straat – een plek waar het voelt alsof je de drukte achter je laat zodra je thuiskomt.
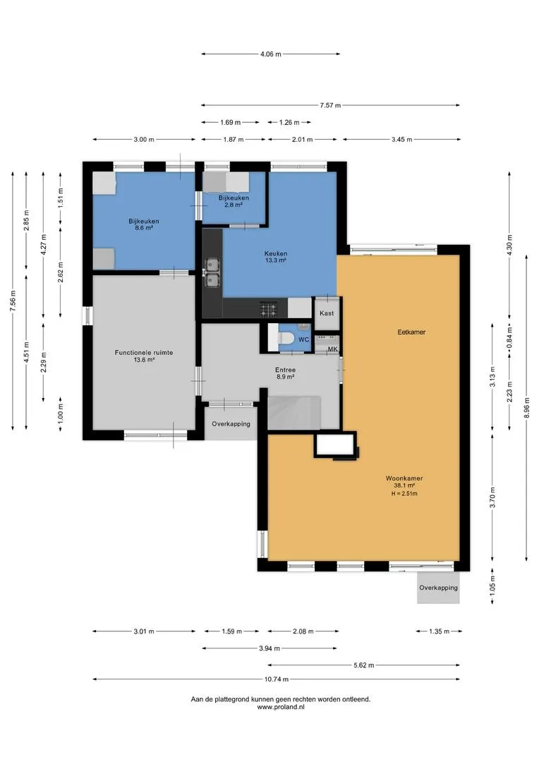
Indeling:
Begane grond:
– overdekte entree
– hal met trapopgang
– toilet + fontein
– meterkast
– extra kamer voor werk of hobby’s
– berging
– L-vormige woonkamer (38 m2) met schuifpui naar zowel voor- als achtertuin
– Open keuken met hoekopstelling (2000) en inbouwapparatuur
– bijkeuken met aansluiting wasmachine
Verdieping:
– overloop
– badkamer met toilet, wastafel en douche
– slaapkamer 1, 2, 3 en 4 (respectievelijk 8, 10, 13 en 25 m2)
– badkamer 2 met ligbad en dubbele wastafel
Zolder: vaste trap:
– berging
– overloop met c.v.-ketel (2012, eigendom)
– slaapkamer 5
Bijzonderheden:
– spouwmuurisolatie in 2023, certificaat aanwezig
– Kozijnen: hardhout en kunststof, isolatieglas (HR/HR+), behalve in bijkeuken en klein raam atelier
– kruipruimte geïsoleerd in 2001 met hydraschelpen, bewijs aanwezig
– 2022: 8 zonnepanelen



















































