Omschrijving
Woning beschikbaar: Rembrandtstraat 1 – A in Leeuwarden
Klaar voor een nieuwe start op de Rembrandtstraat 1a?
Deze volledig verbouwde stadswoning combineert de charme van honderd jaar historie met het wooncomfort van vandaag. Dankzij energielabel A, vloerverwarming, HR++ beglazing, volledige isolatie, 16 zonnepanelen en een moderne warmtepomp woont u hier volledig gasloos en energiezuinig. Dat betekent niet alleen comfortabel wonen, maar ook een positieve impact op uw portemonnee.
De lichte woonkamer, moderne keuken met inbouwapparatuur en drie slaapkamers maken dit huis instapklaar en voorzien van alle gemakken. Stel uzelf eens voor: terwijl u in alle rust in de woonkamer geniet, spelen de kinderen aan de overkant in de speeltuin. Of maak ’s avonds een ontspannen wandeling langs het water van de Emmakade. Deze woning is helemaal klaar om u lange tijd comfortabel en energiezuinig te huisvesten.
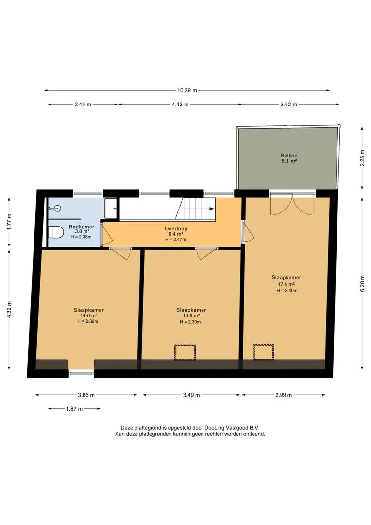
Indeling:
Begane grond
De overdekte entree geeft toegang tot de hal en de woonkamer. Links bevindt zich een inpandige berging, ook bereikbaar vanaf de straatzijde – ideaal voor fietsen of tuingereedschap. De woonkamer is licht en ruim dankzij drie hoge ramen die reiken tot de vloer en uitzicht bieden op de speelweide voor de deur. De moderne keuken is ingericht met een kookeiland met inductiekookplaat en geïntegreerde afzuiging, vaatwasser en spoelbak. In de kastenwand vindt u de oven en koel-vriescombinatie. Achter de keuken bevindt zich een open ruimte die uitstekend te gebruiken is als bijkeuken. Verder zijn er een tweede berging en een toilet aanwezig. Vanuit de woonkamer leidt een vaste trap naar boven.
1e verdieping
De lichte overloop verbindt drie ruime slaapkamers. De grootste kamer heeft dubbele openslaande deuren naar het balkon op het westen. De badkamer is modern en voorzien van een inloopdouche, wastafelmeubel en toilet.
Bouw en verbouw
Oorspronkelijk gebouwd in 1918 als onderdeel van een hoekpand aan de Emmakade, is deze woning in tussen 2020 en 2023 volledig gesplitst en verbouwd tot een zelfstandige gezinswoning. Daarbij is gekozen voor hoogwaardige isolatie, HR++ beglazing en moderne installaties. De woning beschikt over vloerverwarming en een Atag lucht-water warmtepomp met geïntegreerde boiler.
Kenmerken:
– Bouwjaar 1918, volledig verbouwd 2020–2023
– Woonoppervlakte 139 m²
– Energielabel A
– Volledig geïsoleerd, HR++ beglazing en vloerverwarming
– 16 zonnepanelen
– Gasloos en volledig elektrisch
– Atag Energion M compact 50 R32 warmtepomp, lucht-water warmtepomp met geïntegreerde 180 liter boiler
– Balkon op het westen
– Erfpacht € 11,- per jaar (kan nooit worden verhoogd)
– Instapklaar en direct beschikbaar
De wijk en omgeving
De woning ligt in de Rembrandtstraat, direct naast de karaktervolle Emmakade. Voor de deur vindt u een speeltuin, ideaal voor jonge gezinnen, en aan de overzijde van het Nieuwe Kanaal ligt een Albert Heijn. Ook andere voorzieningen zijn ruim aanwezig in de wijk en in de directe omgeving. Het levendige centrum van Leeuwarden en het station bereikt u gemakkelijk lopend of per fiets.
Enthousiast geworden van deze moderne en energiezuinige stadswoning? Maak dan snel een afspraak voor een bezichtiging en ervaar zelf het wooncomfort dat deze woning u te bieden heeft!
















































